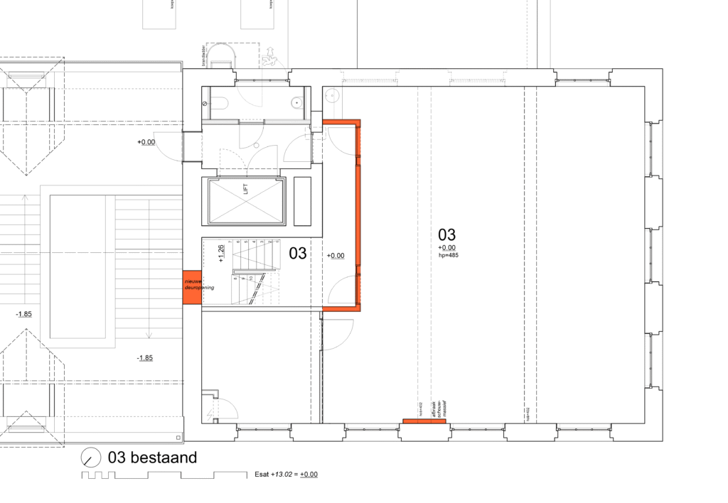
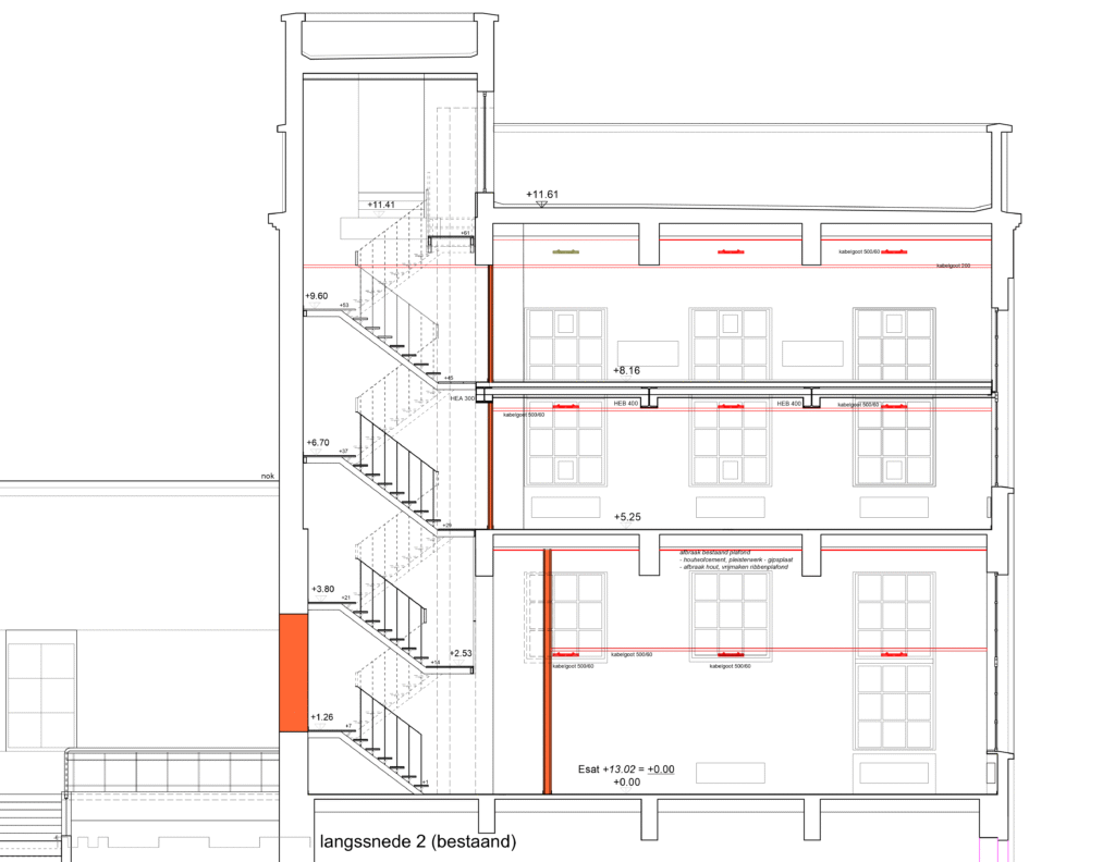
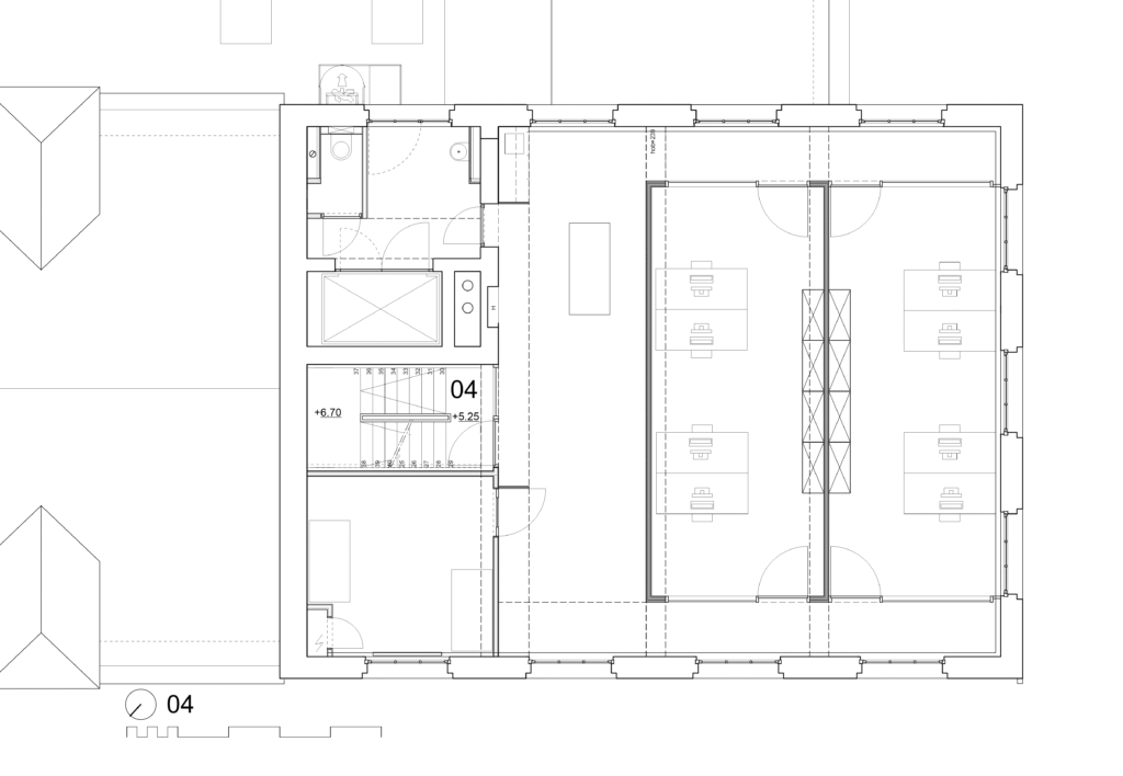
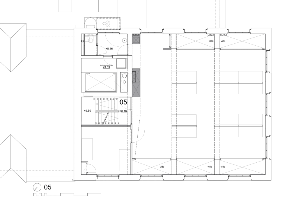
verbouwing Esat Toren

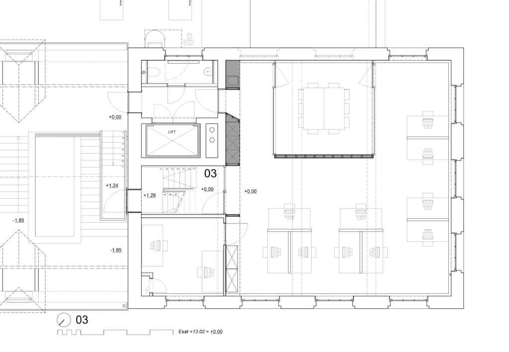
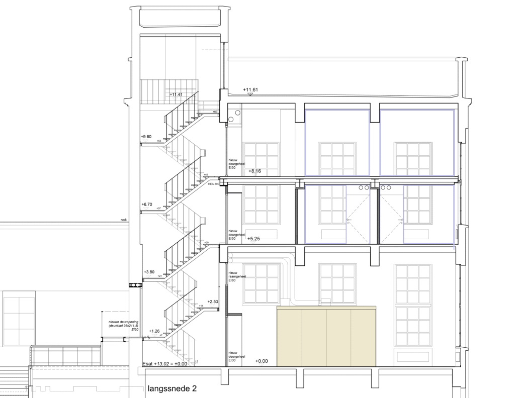
verbouwing, herinrichting niv03, 04, 05, Toren Esat KU Leuven

binnenkort meer…