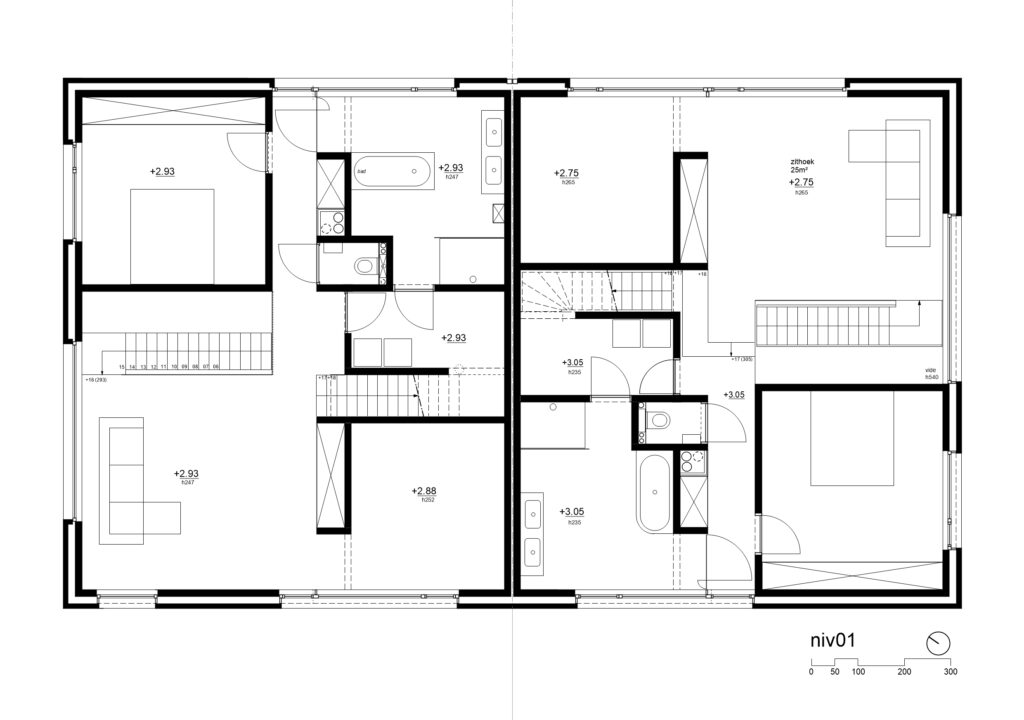
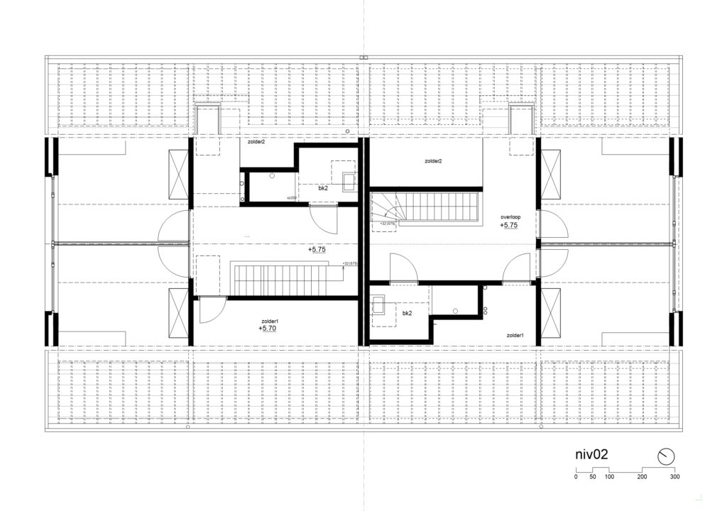
dubbelwoning Atlax

twee gekoppelde woningen, Nederokkerzeel

  • 2 gekoppelde eengezinswoningen te Nederokkerzeel
  • ontwerp: 2016
  • uitvoering: 2018-2020
  • bouwheer: Atlax bvba
  • ir. stab.: Jo Deflander bvba