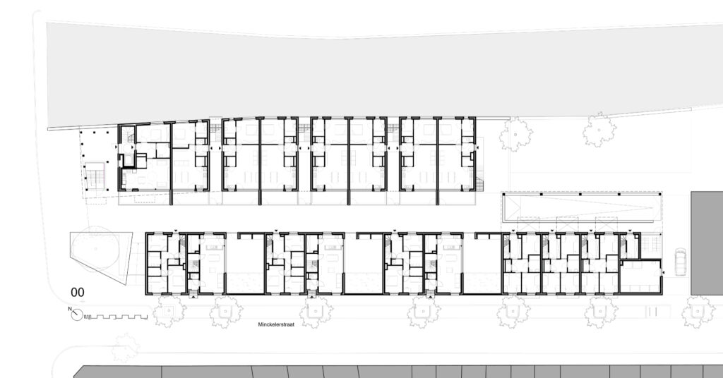
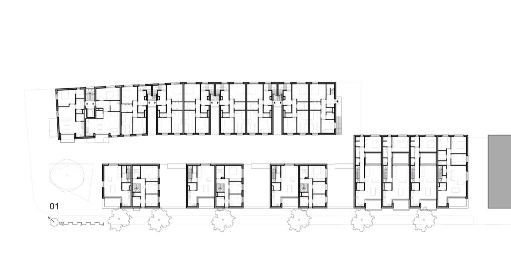
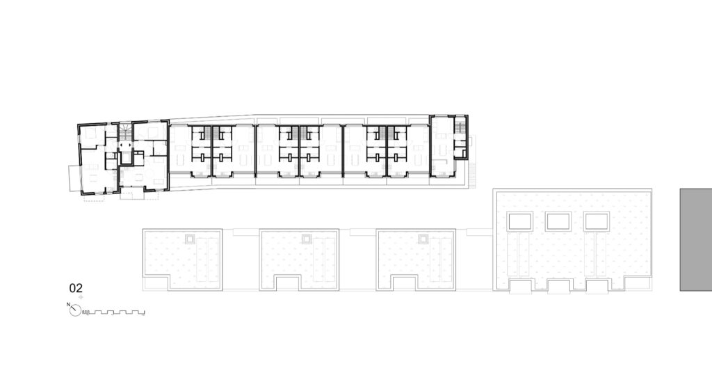
31 sociale huurwoningen Dijledal, Leuven
foto’s Steven Massart
- 31 sociale huurwoningen, Minckelersstraat, Leuven
- ontwerp: 2010, i.s.m. LANDarchitecten (Karel Medart)
- uitvoering: 2019-2021, LANDarchitecten (Karel Medart, Mattias Vermeulen) i.s.m. ghislain lams
- bouwheer: Dijledal cvba
- ir. stab.: Jo Deflander bvba
- ir. techn.: studie10










































