studiosmal
ontwerpwerk
wie & waar
verbouwing woning LMB
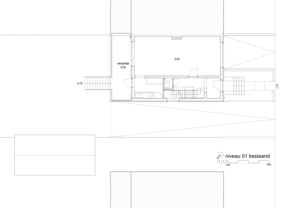
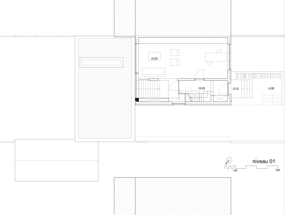
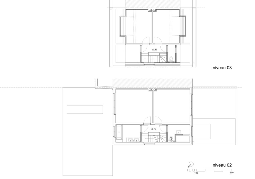
verbouwing en uitbreiding driegevelwoning, Kessel-Lo
verbouwing en uitbreiding halfopen bebouwing, Kessel-Lo
ontwerp: 2006
uitvoering: 2007-2008
ir. stab. : Filip van de Voorde
←
uitbreiding woning STB
verbouwing woning VND
→