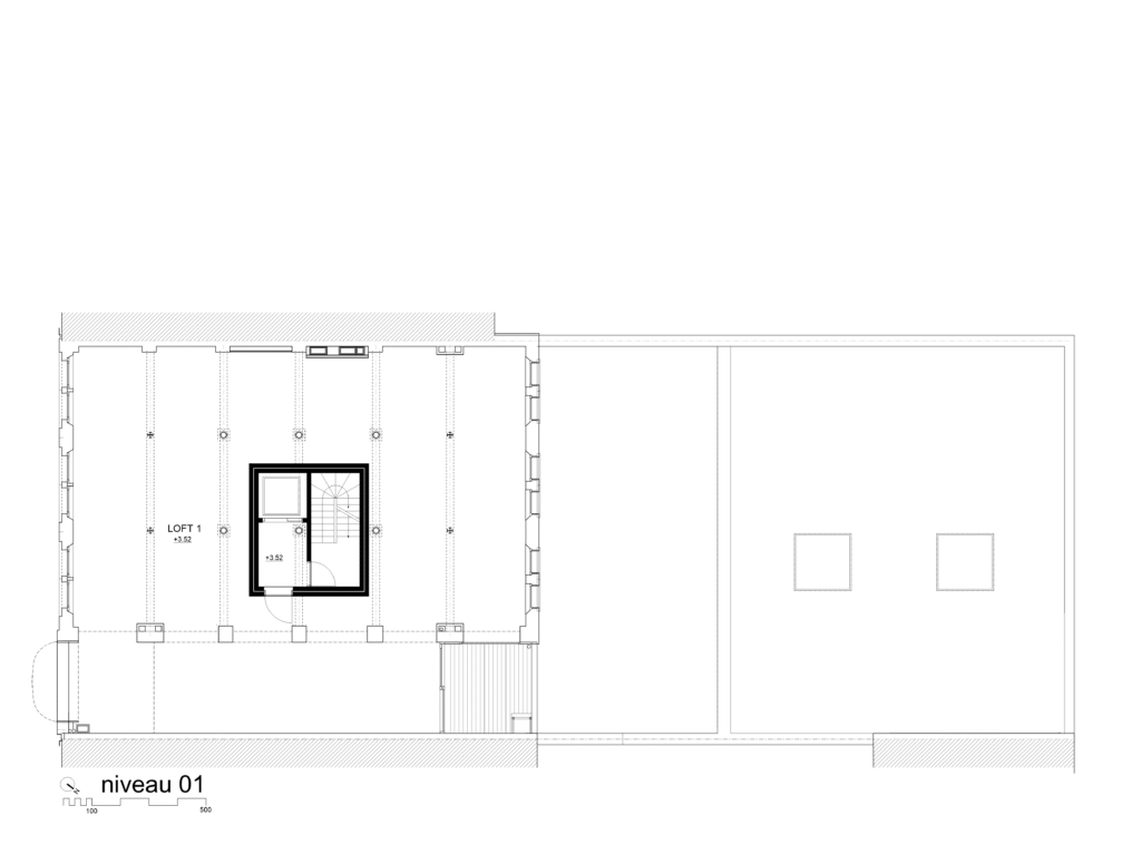
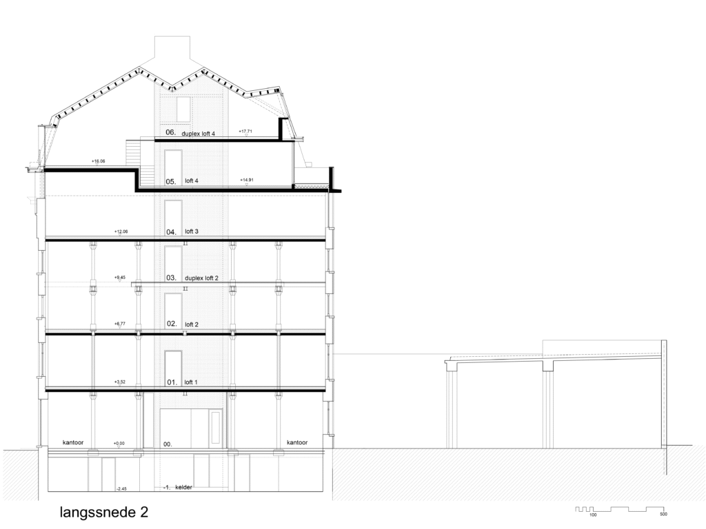
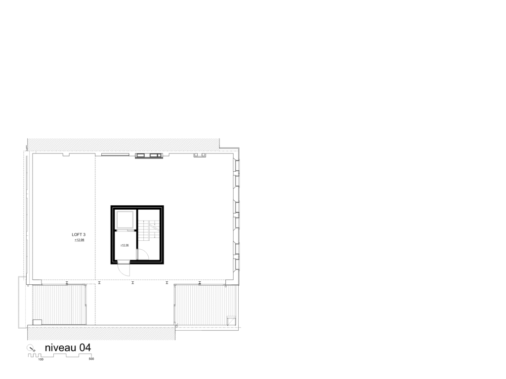
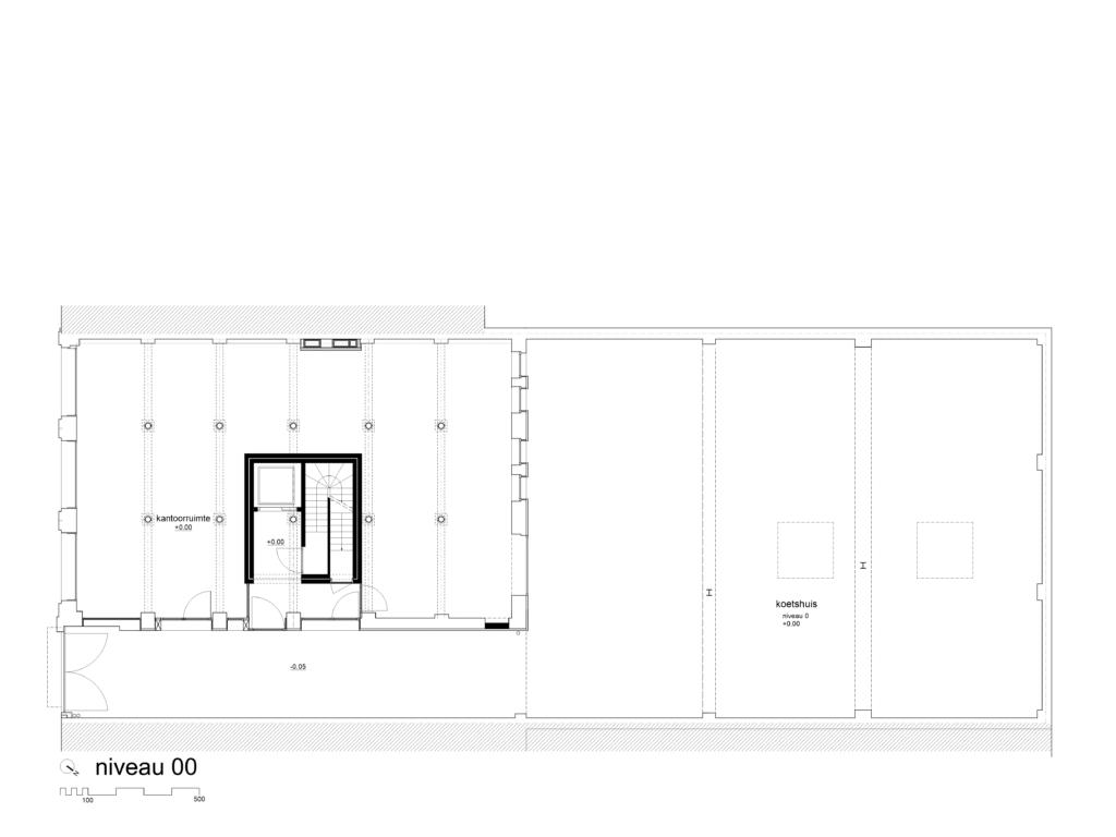
verbouwing stapelhuis

verbouwing pakhuis tot casco lofts en kantoorruimte, Antwerpen

  • verbouwing stapelhuis tot casco lofts en kantoorruimte
  • ontwerp: 2005
  • uitvoering: 2007 – 2009
  • bouwheer: Hero projekt
  • ir. stab: Filip Van de Voorde