studiosmal
ontwerpwerk
wie & waar
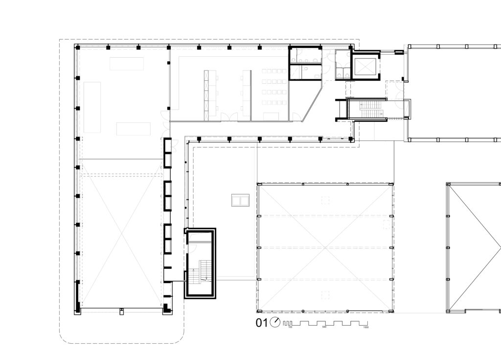
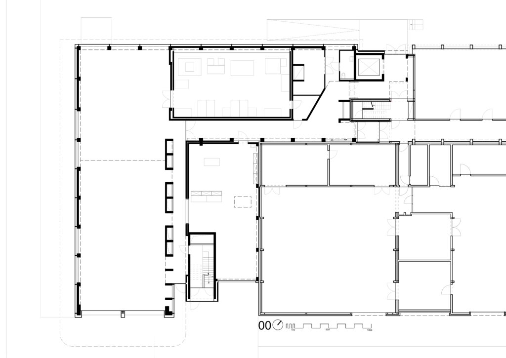
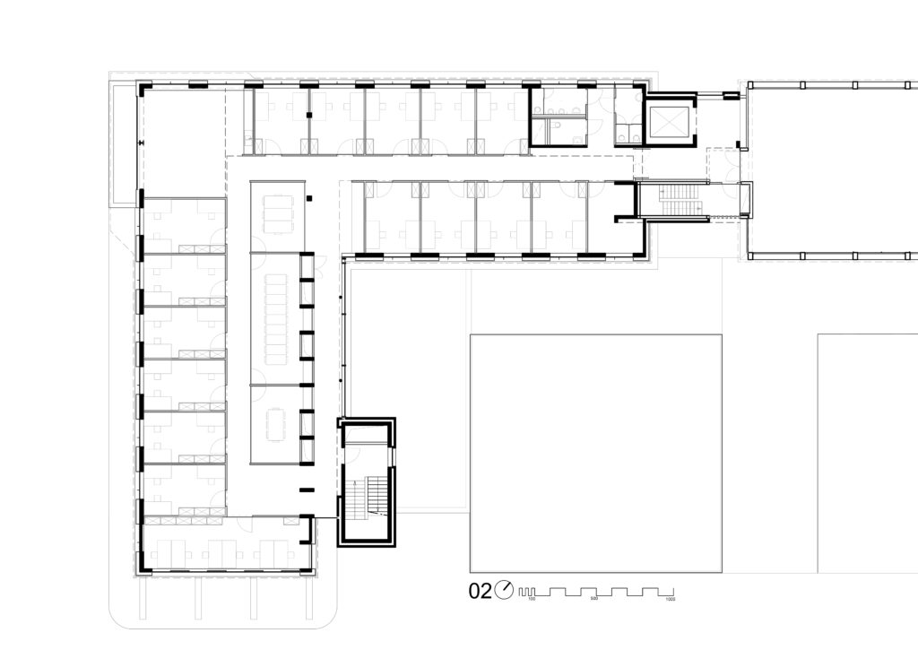
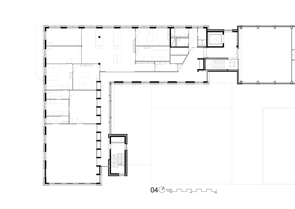
uitbreiding Werktuigkunde
labo- en leslokalen KU Leuven, campus Arenberg Heverlee
←
Centraal Auditorium
uitbreiding ESAT
→