nieuwbouw KTA1 en uitbreiding SBSO Ter Zee (fase2), Oostende
foto’s © Tim Van De Velde
- nieuwbouw KTA1 (theatertechnieken en automechanica), uitbreiding SBSO Ter Zee
- wedstrijd Open Oproep 1922 (Vlaams bouwmeester)
- ontwerp: 2010, i.s.m. Tom Van Mieghem (TV Lams Van Mieghem)
- uitvoering: 2014 – 2016 Tom Van Mieghem architecten
- bouwheer: DBFM Scholen Van Morgen
- ir. stab. : Util structuurbureau
- ir. techn.: Boydens studiebureau
- theatertechniek: TTAS
- aannemer: Alheembouw
- tekeningen: Tom Van Mieghem architecten
- foto’s: Tim Van De Velde, Stijn Bollaert, Alheembouw

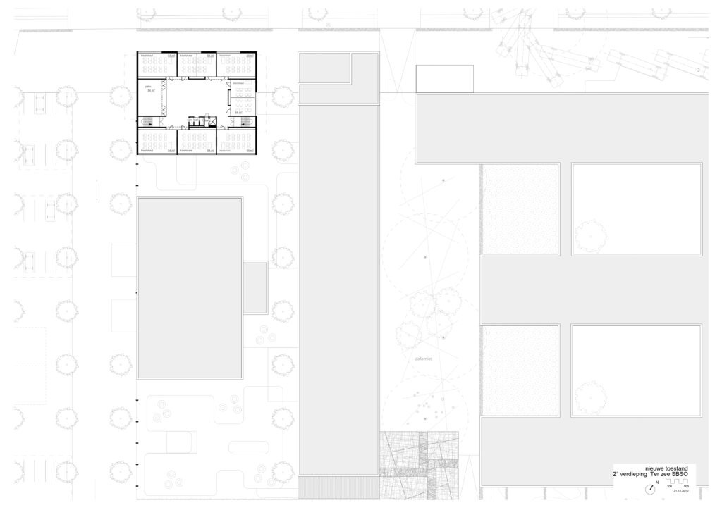
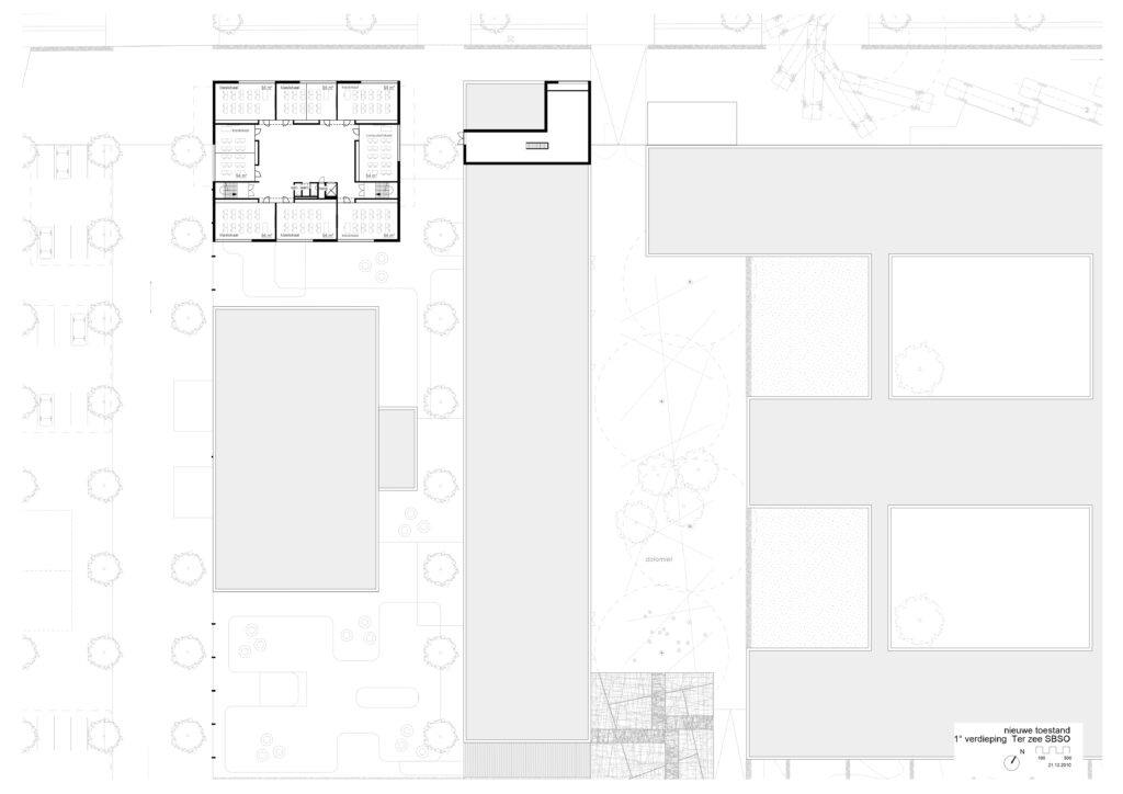
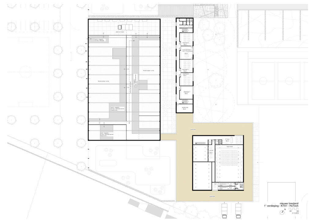
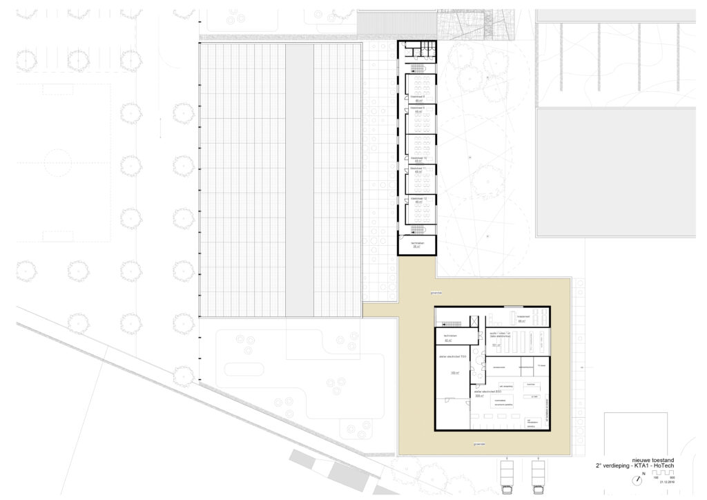
uitbreiding SBSO Ter Zee


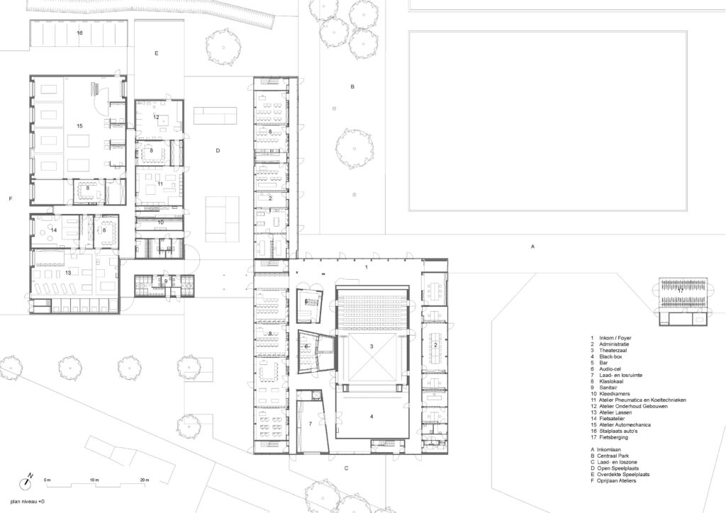
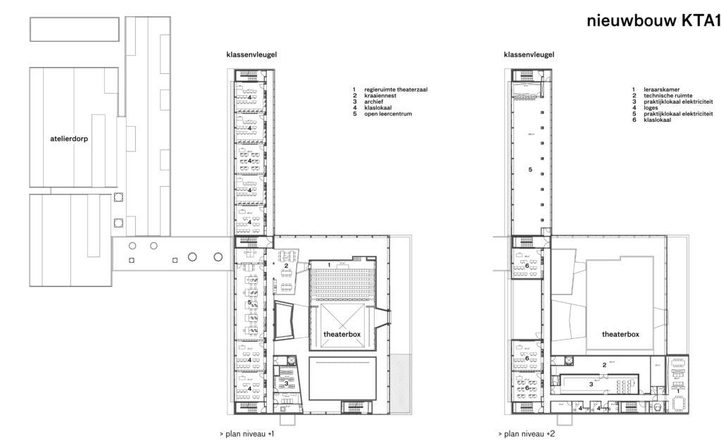
nieuwbouw KTA1


wedstrijdontwerp Open Oproep 1922 (Vlaams Bouwmeester)































