uitbreiding Basisschool De Tuimelaar, De Panne
foto’s © Tim Van de Velde / Vlaams Bouwmeester
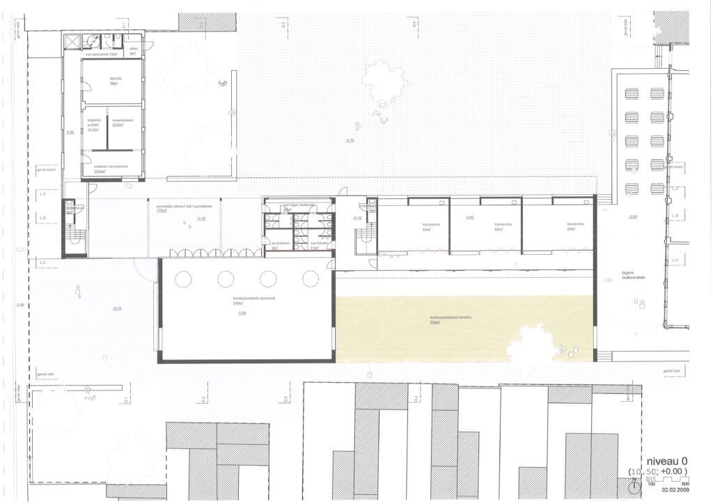
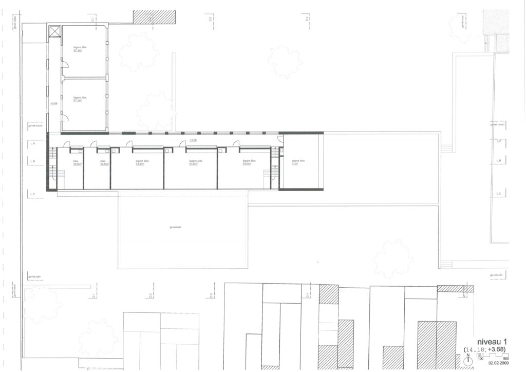
- uitbreiding kleuter- en lagere school De Tuimelaar, De Panne
- wedstrijd Open Oproep 1523 (Vlaams Bouwmeester)
- ontwerp 2009, i.s.m. Tom Van Mieghem (TV Lams Van Mieghem)
- uitvoering 2015-2017: Tom Van Mieghem architecten
- bouwheer: GO! gemeenschapsonderwijs
- ir. stab.: Sileghem en partners
- ir. techn.: studiebureau Boydens nv
- aannemer: Detrac
- foto’s © Tim Van de Velde, Stijn Bollaert
- tekeningen: Tom Van Mieghem architecten
foto’s © Stijn Bollaert
wedstrijdontwerp Open Oproep 1523 (Vlaams Bouwmeester)







































