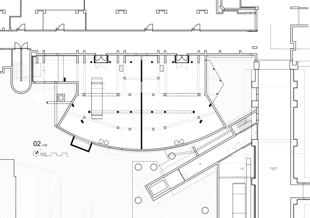
verbouwing vroegere bibliotheek tot auditorium
KU Leuven, campus Gasthuisberg
foto’s Steven Massart / ghislain lams
- les auditorium biomedische wetenschappen, 456p
- ontwerp: 2020
- uitvoering: 2021-2023
- bouwheer: KU Leuven – Technische Diensten
- ir. stab.: Jo Deflander bvba
- ir. techn: Macobo Stabo

















